ЖК Грин парк в Грозном
ЖК Green Park
Мат. капитал как взнос
от 33 м² до 84 м²
2027 год 4 квартла
от 2 706 000
ЖК GREEN-PARK — ваш тихий оазис в сердце современного города!
Жилой комплекс, где каждая деталь создана для вашего удобства: от продуманных планировок до зеленых зон, где можно дышать полной грудью. Здесь вас ждет безопасность, тишина и все
необходимое для жизни — прямо за порогом дома.
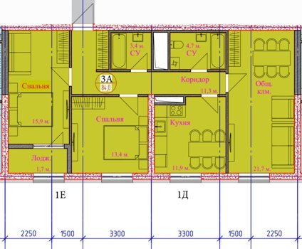
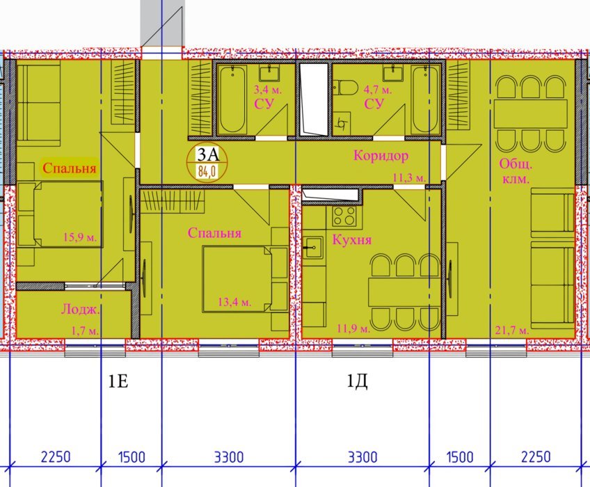
ТИПОВЫЕ ПЛАНИРОВКИ ОБЪЕКТОВ
1-комнатная
Площадь от 33 м2
от 2.706.000 руб
2-комнатная
Площадь от 62 м2
от 5.084.000 руб
3-комнатная
Площадь от 84 м2
от 6.888.000 руб
ЖК Green Park ЭТО
динамично развивающейся локации с безупречной инфраструктурой. Рядом с комплексом находятся школа, детский сад, спортивный комплекс и мэрия, а прогулочная аллея вдоль домов станет вашим любимым маршрутом для утренних пробежек или вечерних променадов.
Ухоженные газоны, цветущие клумбы и тенистые аллеи — идеальное место для отдыха, прогулочная аллея с зонами для пикников и велодорожками.
-
2 пассажирских и 1 грузовой никаких очередей и неудобств
-
Кафе, магазины, аптеки и услуги — всё в шаговой доступности
-
Закрытая территория без машин: дети играют во дворах, а вы наслаждаетесь тишиной. Круглосуточное видеонаблюдение
-
-
ПОПУЛЯРНЫЕ ОБЪЕКТЫ С
ОТКРЫТЫМИ ПРОДАЖАМИ
ЖК Аврора
ЖК Манор
ЖК Олимпийский
ЖК Доминант
ЖК Луч
ЖК Арбат
ЖК Московский в Грозном
ЖК Монументаль
ЖК Да Винчи
ЖК Даймохк
ЖК X-Tower
ЖК Альтаир
ЖК Black Rock
ЖК Башни-Близнецы 2
ЖК Triumph
ЖК Аристократ
Склад в Грозном
НЕ НАШЛИ ПОДХОДЯЩЕЕ?
Укажите параметры недвижимости, и мы подберем варианты в течение дня бесплатно