ЖК Башни-Близнецы 2

ЖК Башни-Близнецы в Грозном

 
площадь

от 30м² до 86м²

 
завершение

4 квартал 2027 года

 
стоимость

2 134 000

ЖК Башни Близнецы расположен в самом начале нового проспекта — на стыке старого и нового центра. Рядом Аллея славы, памятник Дружбы народов и вся необходимая инфраструктура: школа, детский садик, транспортная развязка и т.д

Большой выбор планировок правильной формы: от студий 30м² до трёхкомнатных 86м².

ТИПОВЫЕ ПЛАНИРОВКИ ОБЪЕКТОВ

Студия

Площадь от 30.49 м2

от 2.134.000 руб

1-комнатные

Площадь от 43.73 м2

от 3.061.000 руб

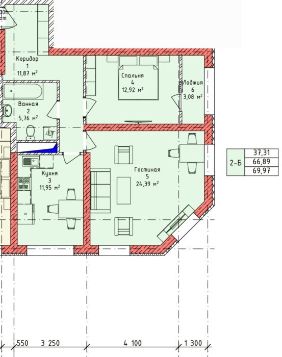
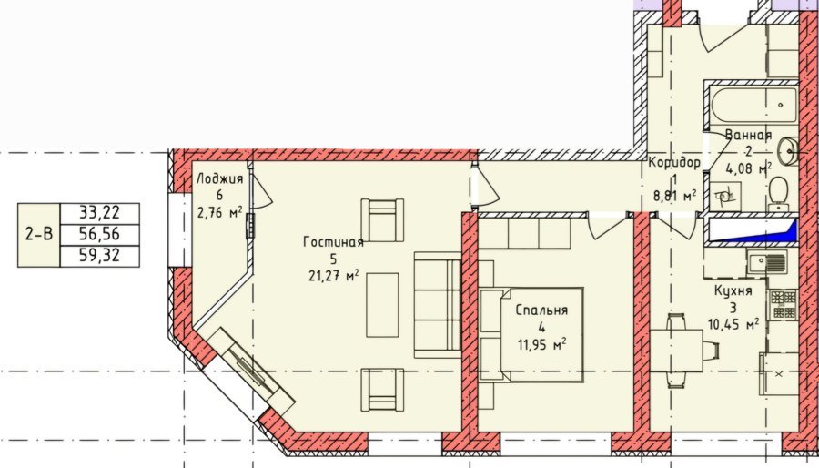
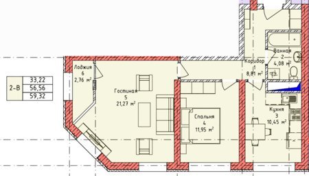
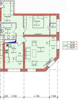
2-комнатные

Площадь от 59.32 м2

от 4.152.000 руб

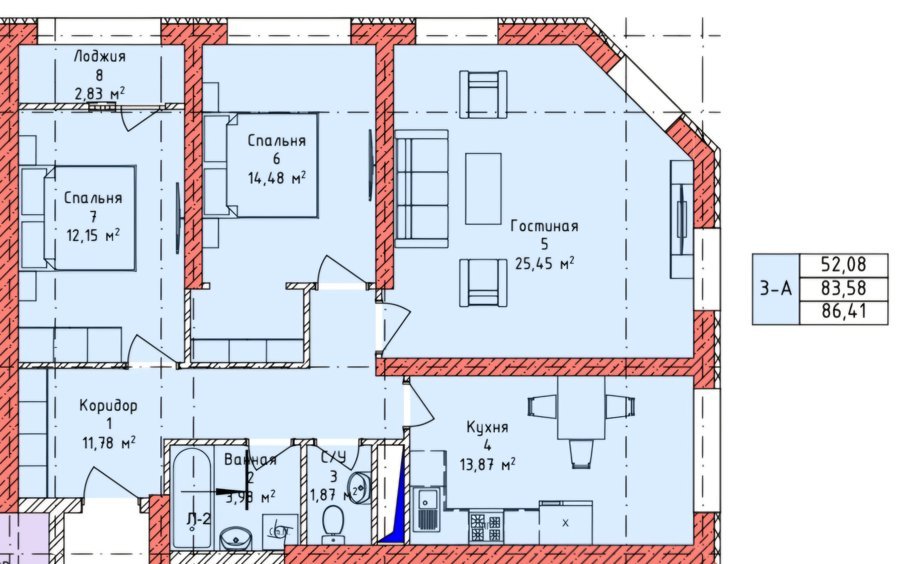
3-комнатные

Площадь от 86.41 м2

от 6.048.000 руб

ЖК Башни-Близнецы 2 ЭТО

  • Это дает жителям удобства и широкий выбор товаров и услуг прямо в жилом комплексе.

  • Окна двухкомнатных и трехкомнатных квартир выходят в две стороны, что дает улучшенную вентиляцию, естественное освещение, и возможность использовать солнечный свет для различных нужд.

  • Застройщиком объекта является строительная компания «Атлант», отлично зарекомендовавший себя в сфере строительства по Чеченской республике. Им построены и строятся множество объектов по г. Грозному, в том числе и в Новом районе, такие как «Сириус», «Эмпайр», Комьюнити, «Башни-близнецы 1».

ОНЛАЙН КОНСУЛЬТАЦИЯ

получите больше информации о проекте
и задайте свои вопросы

НЕ НАШЛИ ПОДХОДЯЩЕЕ?

Укажите параметры недвижимости, и мы подберем варианты в течение дня бесплатно

Пожалуйста, укажите телефон
Согласен с политикой конфиденциальности
Необходимо согласие
Написать в мессенджер